Aller au contenu principal
Retour aux projets

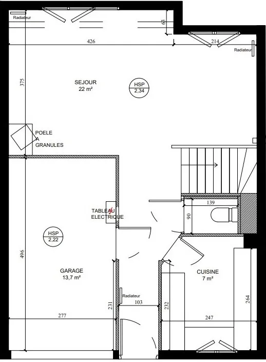
Projet Thiais

Lieu
Thiais
Surface
47 m²
Date de réalisation
2022-03
Catégories
Salon
Projet Thiais

Rénovation du rez-de-chaussée

Rénovation du RDC de 47 m² d’une charmante maison et réhabilitation d’un ancien garage. Nous avons repensé l’espace dédié à la voiture des anciens propriétaires afin d’agrandir l’entrée et le séjour. Nous y avons également créé un débarras pour y mettre poussettes et vélos.

Personnalisation et couleurs

Afin de personnaliser leur maison et d’y mettre leur touche personnelle, nous avons choisi avec les clients une gamme de couleur. Le terracotta pour l’entrée et le vert sauge pour mettre en valeur l’escalier. Pour apporter de la chaleur à la pièce, un parquet stratifié a été posé sur le carrelage blanc et froid.

Sous l’escalier, l’espace a été aménagé afin de créer des rangements supplémentaires ou une petite cabane pour la petite fille de mes clients.

Avant / Après