Aller au contenu principal
Retour aux projets

Projet Courtois

Lieu
Paris 11e
Surface
Maison
Date de réalisation
2022-06
Catégories
Salon, Cuisine, Chambre, Salle de bain
Projet Courtois

Le projet d’une vie : une maison en plein Paris

Ce projet est le projet d’une vie : acheter une maison en plein Paris. Rêve atteint ! Mes clients ont déniché une maison au plein cœur du 11e arrondissement. Mais cet achat signifiait de gros travaux pour remettre aux normes cette maison laissée dans son jus et pour la remettre au goût du jour. Afin d’étaler les dépenses dans le temps, tous les travaux ne vont pas être réalisés tout de suite. La priorité est sur la remise aux normes de la maison actuellement (plomberie et électricité) afin de pouvoir y vivre confortablement.

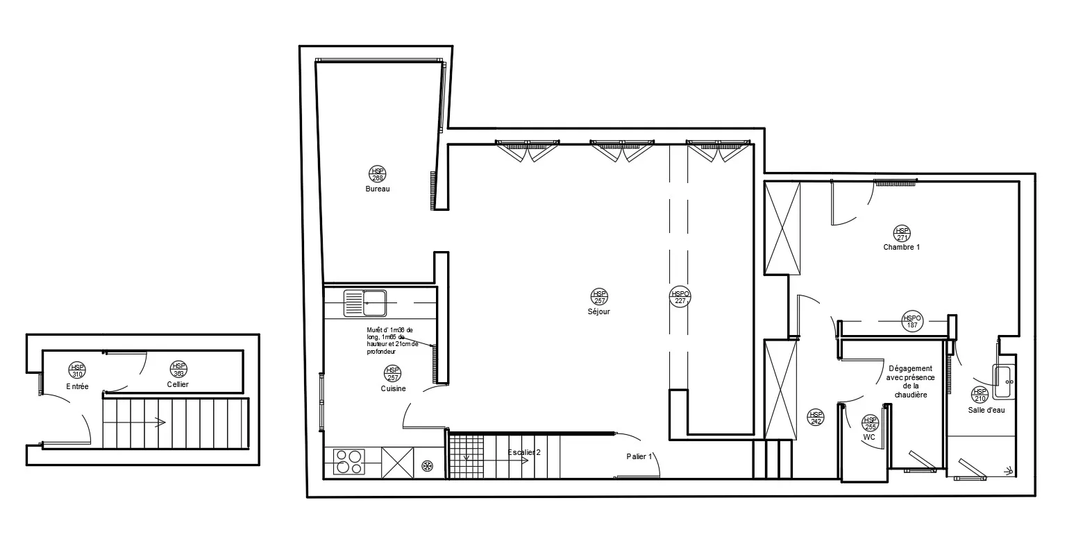
RDC et 1er étage

La pièce à vivre se situe au 1er étage de cette maison. L’objectif principal pour cette pièce est d’ouvrir la cuisine sur le salon grâce à un claustra afin de laisser passer la lumière. Une banquette va être installée devant afin de créer un coin repas.

L’agencement a été repensé afin d’utiliser l’espace perdu où se situait la chaudière. Une buanderie y a été installée ainsi qu’une nouvelle entrée vers la salle d’eau.

Le 2e étage : l’espace des enfants

Le deuxième étage est un espace dédié aux enfants. Les jumelles se partagent une grande chambre ainsi qu’une salle de bain attenante. Afin d’apporter de la luminosité dans l’escalier, une verrière sur mesure a été installée. Elle laisse entrevoir un beau papier peint qui donne le ton à la chambre.

Le carrelage de la salle de bain reste dans la même gamme de couleur. Une verrière sur mesure a été dessinée afin de séparer les WC du reste de la salle de bain.

Le résultat

Une maison parisienne remise aux normes et au goût du jour, où chaque étage a été repensé pour offrir confort et luminosité à toute la famille.